NEW

売中古戸建 山口市秋穂東

2月3日 値下げ

1,050万円

山口県山口市秋穂東日地

山陽本線「大道」駅徒歩77分

価格
1,050万円
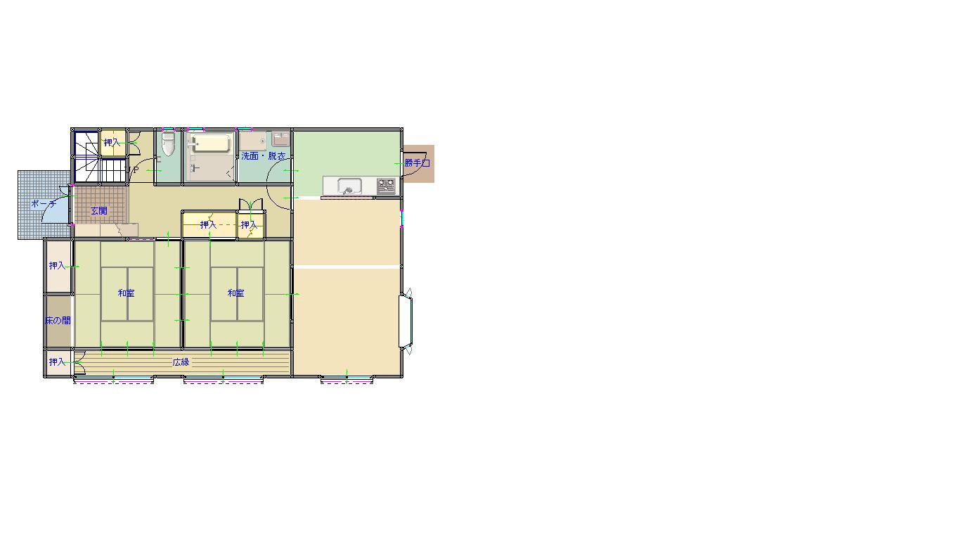
間取り
5LDK
土地面積
1148.70㎡
所在地
山口県山口市秋穂東日地
交通

山陽本線大道」駅 徒歩77分

建物面積
167.20㎡
築年月
1997年8月(築28年)

物件の特徴

  • 室内洗濯機置場

  • カウンターキッチン

セールスポイント

家族で住むなら寝室10帖以上の間取りはいかがでしょうか。家族仲良く寝る事もできて魅力的です。こちらは中古の戸建てです。家族におすすめな5LDK。設備も充実しています。冬でも家中があったかいオール電化住宅で、寒い時でも毎日ぽかぽかです。毎日の生活が充実できるよう、お客様の住まい探しをお手伝いいたします。こだわりのエリアや条件などございましたら、お気軽に当社へお問い合わせ下さい。

ポイント

書斎 照明器具付き クロゼット LDK18帖以上 土地300坪以上 価格応談

担当者のコメント

家族におすすめな5LDK。設備も充実しています。海が近いので、夏は毎日好きなだけ海水浴を楽しめます。こちらの住宅の向きは南西向きです。お探しの方はどうぞ。建物面積167.2平方メートルですので快適な生活ができます。不動産のことは当社にお任せ下さい。お客様のご希望に適った不動産をお探しいたします。ぜひ当社の利用をご検討くださいませ。お問い合わせをお待ちしております。

基本情報

販売戸数
-
総戸数
-
間取り / 詳細
5LDK
和室 8.0帖 2室/LDK 18.0帖 1室/洋室 10.0帖 1室/洋室 8.0帖 1室/洋室 6.0帖 1室/その他 12.9帖
その他 未登記倉庫あり
向き
南西
建物面積(坪数)
167.20㎡(50.57坪)
土地面積(坪数)
1148.70㎡(347.48坪)
建ぺい率 /
容積率
70%/200%
築年月
1997年8月(築28年)
土地権利
所有権
土地
(敷金 / 保証金)
- / -
建物構造
プレキャストコンクリート / 2階建
傾斜地部分面積
-
路地状敷地
-
私道負担面積
-
セットバック
高圧線下面積
-
施工会社
ウベハウス中海工業(株)
用途地域
無指定
地目 / 地勢
宅地、雑種地 / その他
接道状況
一方(南 私道 4.0m 間口 4.0m)(南西 私道 4.0m 間口 2.0m)
国土法届出要否
不要
都市計画
非線引区域
総区画数 /
販売区画数
-/-
現況
空家
その他
法令上の制限
景観法/宅地造成及び特定盛土等規制法/特別用途制限地域
取引態様
専任媒介
引渡し
相談
取引条件の
有効期限
2026年02月27日

設備条件

設備条件
  • 海が近い / 室内洗濯機置場 / フローリング / ベランダ / 公営水道 / 浄化槽排水 / オール電化 / 電気有 / 照明器具付き / 駐車2台可 / IHクッキングヒーター / コンロ2口以上 / システムキッチン / カウンターキッチン / トイレ2ヶ所
設備(その他)
    -

その他

物件番号
95758934
管理コード
-
建築確認番号
第H09認建山土001132号
情報更新日
2026年02月13日
次回更新予定日
2026年02月27日
取扱会社
  • U2JAPAN株式会社
  • 静岡県静岡市駿河区桃園町8-5 
  • TEL:054-266-3500
  • 国土交通大臣 (1) 第10179号
  • 公益社団法人 全国宅地建物取引業保証協会
    公正取引協議会加盟事業者
備考
落ち着いた田園風景の中にいれば癒されます。家族におすすめな5LDK。設備も充実しています。こちらの住宅の向きは南西向きです。お探しの方はどうぞ。フローリングは木のぬくもりが感じられるため住み心地も良好。帰りたくなる我が家を見つけませんか。素敵な土地を見つけて、快適な生活を始めましょう。ぜひ当社のオススメする土地をご検討ください。

周辺施設

  • 大海小学校の画像

    小学校

    大海小学校

    1243m(16分)

  • コメリハード&グリーン秋穂店の画像

    ホームセンター

    コメリハード&グリーン秋穂店

    1934m(25分)

  • 山口市立秋穂中学校の画像

    中学校

    山口市立秋穂中学校

    2250m(29分)

  • 山口市秋穂総合支所の画像

    市役所・区役所

    山口市秋穂総合支所

    2421m(31分)

  • セブンイレブン 山口秋穂東店の画像

    コンビニエンスストア

    セブンイレブン 山口秋穂東店

    2547m(32分)

  • サンマート 秋穂店の画像

    スーパー

    サンマート 秋穂店

    2835m(36分)

  • 佐波歯科医院の画像

    歯科

    佐波歯科医院

    2955m(37分)

  • 吉武医院の画像

    総合病院

    吉武医院

    2985m(38分)

  • 山口銀行秋穂支店の画像

    銀行

    山口銀行秋穂支店

    3094m(39分)

  • 山口県立総合医療センターの画像

    総合病院

    山口県立総合医療センター

    12327m(155分)

支払いシミュレーション

月々の支払額
9.6
購入希望物件価格
万円
頭金
万円
金利
%
返済額(ボーナス1回分)
万円
返済期間

※ボーナスは自動で年2回分で計算されます。

売中古戸建 山口市秋穂東

売中古戸建 山口市秋穂東

1,050万円

-

5LDK(167.20㎡)

お気軽にお問い合わせください

無料お問い合わせ

U2JAPAN株式会社

054-266-3500

9:30~18:30

(休:火曜日・水曜日)