売中古戸建 山口市秋穂東

1,050万円

山口県山口市秋穂東日地

山陽本線「大道」駅徒歩77分

価格
1,050万円
間取り/建物面積
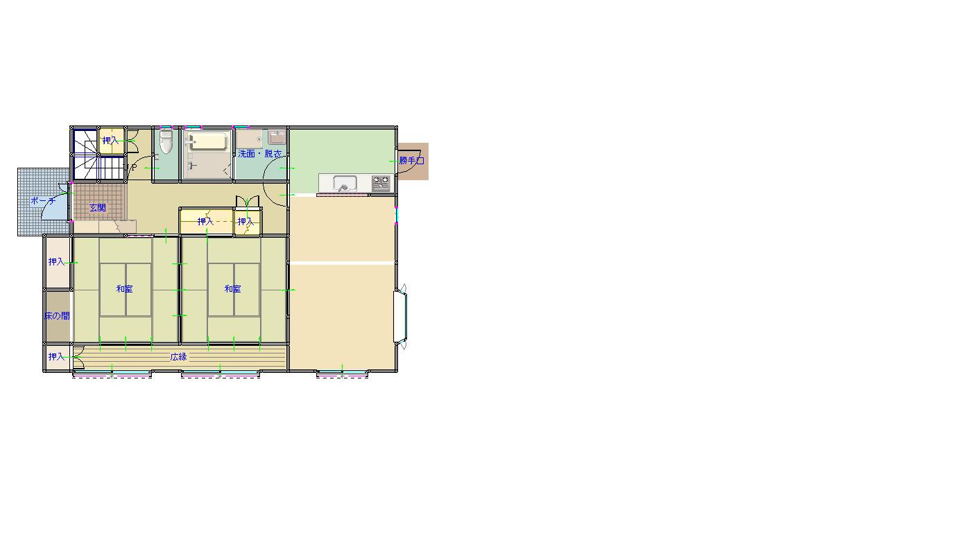
5LDK/167.20㎡
所在地
山口県山口市秋穂東日地
築年
1997年8月(築28年)
駐車
-
交通

山陽本線大道」駅 徒歩77分

売中古戸建 山口市秋穂東 の基本情報

物件名
売中古戸建 山口市秋穂東
価格
1,050万円
建物面積
167.20㎡
土地面積
347.48坪(1148.70㎡)
築年月
1997年8月(築28年)
総戸数
-
所在地
山口県山口市秋穂東日地
交通

山陽本線大道」駅 徒歩77分

売中古戸建 山口市秋穂東 の詳細情報

設備条件
  • 海が近い
  • 駐車2台可
設備(その他)
    -
駐車場/月額
-/-
土地権利
所有権
国土法届出
不要
用途地域
無指定
取引態様
専任媒介
引渡し
相談

売中古戸建 山口市秋穂東 で募集中の物件

  1. 50.57坪 (167.20㎡)

    1,050万円(20.76万円/坪)

周辺施設

  • 大海小学校の画像

    小学校

    大海小学校

    1243m(16分)

  • コメリハード&グリーン秋穂店の画像

    ホームセンター

    コメリハード&グリーン秋穂店

    1934m(25分)

  • 山口市立秋穂中学校の画像

    中学校

    山口市立秋穂中学校

    2250m(29分)

  • 山口市秋穂総合支所の画像

    市役所・区役所

    山口市秋穂総合支所

    2421m(31分)

  • セブンイレブン 山口秋穂東店の画像

    コンビニエンスストア

    セブンイレブン 山口秋穂東店

    2547m(32分)

  • サンマート 秋穂店の画像

    スーパー

    サンマート 秋穂店

    2835m(36分)

  • 佐波歯科医院の画像

    歯科

    佐波歯科医院

    2955m(37分)

  • 吉武医院の画像

    総合病院

    吉武医院

    2985m(38分)

  • 山口銀行秋穂支店の画像

    銀行

    山口銀行秋穂支店

    3094m(39分)

  • 山口県立総合医療センターの画像

    総合病院

    山口県立総合医療センター

    12327m(155分)

売中古戸建 山口市秋穂東

お気軽にお問い合わせください

無料お問い合わせ

U2JAPAN株式会社

054-266-3500

9:30~18:30

(休:火曜日・水曜日)